重庆品茶网论坛,苏州后花园论坛,小伙子泻火老阿姨最新视频

7×24小时咨询热线:


推荐产品

  • 预制装配式楼梯
  • 预制装配式叠合楼板
  • 保温专用柔性腻子
  • 建筑外墙保温装饰一体化系统
  • 无机玻化微珠外墙外保温系统
  • 胶粉聚苯颗粒外墙外保温系统
亿利新材料热线:
地址:辽宁省葫芦岛高新技术产业开发区北二路92号-2

标准

您当前位置:首页 >> 技术资料 >> 标准

辽宁亿利外墙外保温系统施工工法

发布日期:2018/10/30浏览次数:7522 次来源:辽宁亿利新材料有限公司

 

辽宁亿利外墙外保温系统施工工法
1.前 言


  1.0.1  辽宁亿利新材料主要生产与外保温配套相关产品。一类为在墙体等基层上粘贴各类保温材料(聚苯板、岩棉板等)后表面施工抹面砂浆的薄抹灰施工工法,此类工艺较为简便且成熟,其基本构造见表1.0.1。

 

  1.0.2  重点说明第二类为胶粉聚苯颗粒贴砌保温板外墙外保温系统包括三种外保温做法:胶粉聚苯颗粒保温浆料外墙外保温做法(简称保温浆料做法)是一种现场抹灰成型的无空腔高防火等级保温做法;胶粉聚苯颗粒贴砌保温板(EPS板、XPS板、竖丝岩棉板)外墙外保温做法(简称贴砌保温板做法)和胶粉聚苯颗粒贴砌保温板外墙外保温简易做法(简称贴砌保温板简易做法)是对胶粉聚苯颗粒保温浆料外墙外保温做法的创新和发展,是适合于我国建筑节能65%标准及更高节能标准要求的外墙外保温做法。
  1.0.3  胶粉聚苯颗粒贴砌保温板外墙外保温系统中的做法通过了建设部的技术评估,并被建设部评为全国绿色建筑创新二等奖,同时被列入国家重点新产品和火炬计划项目。
  1.0.4  截至目前,本技术系统已编的行业(协会)标准有《胶粉聚苯颗粒外墙外保温系统》(JG 158—2004)、《胶粉聚苯颗粒复合型外墙外保温系统》(CAS 126—2005),并被编入北京、天津、甘肃、安徽、内蒙等地方标准中,在华北、新疆、内蒙、天津、山东、浙江、辽宁、甘肃、湖南等多个标准图集中也编入了该技术系统。

 

 2.工法特点

  2.0.1  采取无空腔满粘满抹做法,粘结力大,无空腔,抗风压性能强。
  2.0.2  各构造层设计从内至外柔性渐变,抗裂性能好。
  2.0.3  施工适应性好,适应墙面及门、窗、拐角、圈梁、柱等变化,基层墙体剔凿量少。
  2.0.4  充分利用无机不燃材料及采用分仓构造做法,提高了系统的防火性能。
  2.0.5  板缝构造和XPS板的板洞设计有利于水蒸气排出。
  2.0.6  采用抗裂防护层增强网塑料锚栓锚固于基层墙体做法,系统抗震性能好。

 

 3.适用范围

  3.0.1  保温浆料做法适用于北方地区不采暖楼梯间隔墙保温及加气混凝土砌块等砌体墙和钢筋混凝土墙体的外墙外保温,也适用于南方地区钢筋混凝土墙体及各类砌体墙体的外墙外保温。
  3.0.2  贴砌保温板做法和贴砌保温板简易做法可用于不同气候区、不同建筑节能标准的建筑外墙外保温工程,基层可为混凝土、各种砌体材料。
  3.0.3  保温浆料做法、贴砌保温板做法适合于防火等级要求较高的建筑使用,建筑高度一般不超过100m;贴砌保温板简易做法适合于防火等级要求不太高的建筑使用,建筑高度一般不超过60m。

 

 4.工艺原理

   4.0.1  保温浆料做法的胶粉聚苯颗粒保温浆料(简称保温浆料)保温层采用现场抹灰成型做法使之形成一个有机的整体并无板缝,大量纤维的添入使保温层不易发生空鼓;墙体基层用结构界面砂浆处理,使吸水率不同的材料附着力均匀一致;饰面层采用瓷砖的抗裂防护层采用抗裂砂浆复合热镀锌电焊网做法,热镀锌电焊网由塑料锚栓锚固于基层墙体,抗震性能好;瓷砖采用专用瓷砖粘结砂浆及瓷砖勾缝砂浆,粘结力强、柔韧性好、抗裂防水效果好。该做法各构造层材料柔韧性匹配,热应力释放充分。饰面层采用涂料的抹面砂浆抹面后压入耐碱玻纤网格布,表面抹抹面砂浆成活。其基本构造见表4.0.1。

  4.0.2  贴砌保温板做法采用胶粉聚苯颗粒粘结找平浆料(以下简称粘结找平浆料)满粘、贴砌双面涂刷保温板界面砂浆的梯形槽EPS板、双孔XPS板或竖丝岩棉板,板间留10mm板缝,贴砌后用粘结找平浆料填平板缝及XPS板的两个孔洞,以增强保温板与粘结层、找平层的连接性能,提高系统的透气性;其表面再抹10mm厚粘结找平浆料,形成复合保温层并提高该做法的防火性能。其基本构造见表4.0.2。

 

  4.0.3  贴砌保温板简易做法采用粘结找平浆料满粘、贴砌双面涂刷保温板界面砂浆的梯形槽EPS板、双孔XPS板或竖丝岩棉板,板间留10mm板缝,贴砌后用粘结找平浆料填平板缝及XPS板的两个孔洞,若采用竖丝岩棉板需用塑料锚栓固定(6个/㎡),以增强保温板与粘结层、抗裂防护层的连接性能,提高系统的透气性。其基本构造见表4.0.3。

 

5.施工工艺流程及操作要点
5.1  施工工艺流程(见图5.1-1、图5.1-2)。


图5.1-1  瓷砖施工工艺流程图

 

注:a)保温浆料做法;b)贴砌保温板做法;c)贴砌保温板简易做法。
图5.1-2  涂料施工工艺流程图

  5.2  操作要点
  5.2.1  施工准备
  1、基层墙体应符合《混凝土结构工程施工质量验收规范》(GB 50204—2015)和《砌体结构工程施工质量验收规范》(GB 50203—2011)及相应基层墙体质量验收规范的要求,保温施工前应会同相关部门做好结构验收的确认。如基层墙体偏差超标,则应抹砂浆找平。
  2、房屋各大角的控制钢垂线安装完毕。高层建筑及超高层建筑的钢垂线应用经纬仪复验合格。
  3、外墙面的阳台栏杆、雨水管托架、外挂消防梯等外墙外部构件安装完毕,并在安装时考虑保温系统厚度的影响。
  4、外窗的辅框安装完毕。
  5、墙面脚手架孔、穿墙孔及墙面缺损处用相应材料修整好。
  6、混凝土梁或墙面的钢筋头和凸起物清除完毕。
  7、主体结构的变形缝应提前做好处理。
  8、根据工程量、施工部位和工期要求制定施工方案,要样板先行,通过样板确定定额消耗,由甲方、乙方和材料供应商协商确定材料消耗量,保温施工前施工负责人应熟悉图纸。
  9、组织施工队进行技术培训和交底,进行好安全教育。
  10、材料配制应指定专人负责,配合比、搅拌机具与操作应符合要求,严格按厂家提供的说明书配制,严禁使用过时浆料和砂浆。
  11、根据需要准备一间搅拌站及一间堆放材料的库房,搅拌站的搭建需要选择背风方向,并靠近垂直运输机械,搅拌棚需要三侧封闭,一侧作为进出料通道。有条件的地方可使用散装罐。库房的搭建要求防水、防潮、防阳光直晒。
  12、施工时气温应大于5℃,风力不应大于4级。雨天不得施工,雨季应采取防护措施。
  5.2.2  基层界面处理
  清理干净墙面,不应有油渍、浮灰等。墙面松动、风化部分应剔除干净。墙表面凸起物大于10mm时应剔除(图5.2.2-1)。为使基层界面附着力均匀一致,墙面均应做到界面处理无遗漏。结构界面砂浆可用喷枪或滚刷施工(图5.2.2-2)。砖墙、加气混凝土墙在界面处理前要先淋水阴透墙面,阴干后方可施工。堵脚手眼和废弃的孔洞时,应将洞内杂物、灰尘等物清理干净,浇水湿润,然后按要求将其补齐砌严。

 

  5.2.3  吊垂直、弹控制线
  根据建筑物高度确定放线的方法,高层建筑及超高层建筑可利用墙大角、门窗口两边,用经纬仪打直线找垂直。多层建筑或中高层建筑,可从顶层用大线坠吊垂直,绷铁丝找规矩,横向水平线可依据楼层标高或施工±0.000向上500mm线为水平基准线进行交圈控制。门窗、阳台、明柱、腰线等处都要横平竖直。根据吊垂直通线及保温层厚度,每步架大角两侧弹上控制线。
  5.2.4  保温施工
  1、保温浆料做法
  1) 做灰饼、冲筋在距大墙阴角或阳角约100mm处,根据垂直控制通线按1.5m左右间距做垂直方向灰饼,顶部灰饼距楼层顶部约100mm,底部灰饼距楼层底部约100mm。待垂直方向灰饼固定后,在同一水平位置的两个灰饼间拉水平控制通线,具体做法为将带小线的小圆钉插入灰饼,拉直小线,小线要比灰饼略高1mm,在两灰饼之间按1.5m左右间距水平粘贴若干灰饼或冲筋(图5.2.4-)。灰饼可用保温浆料做,也可用废保温板裁成50mm×50mm小块粘贴。每层灰饼粘贴施工作业完成后水平方向用5m小线拉线检查灰饼的一致性,垂直方向用2m托线板检查垂直度,并测量灰饼厚度,冲筋厚度应与灰饼厚度一致。用5m小线拉线检查冲筋厚度的一致性,并作记录。
  2) 抹保温浆料
  结构界面砂浆基本干燥后即可进行保温浆料的施工(图5.2.4-2)。在施工现场搅拌质量可以通过测量湿表观密度并观察其可操作性、抗滑坠性、膏料状态等方法判断。

 

  保温浆料应分遍抹灰,每遍抹灰厚度不宜超过20mm,间隔应在24h以上。第一遍抹灰应压实,最后一遍抹灰厚度宜控制在10mm左右,抹至与灰饼或冲筋平齐,并用大杠搓平。最后一遍抹灰完成2~3h后进行保温层修补,施工前应用杠尺检查保温层的平整度,保温层的偏差应控制在±2mm。对于凹陷处用稀保温浆料抹平,对于凸起处可用抹子立起来将其刮平,最后用抹子分遍再赶抹保温层,先水平后垂直,再用托线尺、2m杠尺检测后达到验收标准。施工时,在墙角处铺彩条布接落地灰并及时清理,落地灰不超过4h时可少量分批掺入新搅拌的保温浆料中。阴阳角找方、门窗侧口应按下列步骤进行:
  a) 用木方尺检查基层墙角的直角度,用线坠吊垂直检验墙角的垂直度;
  b) 保温浆料面层大角抹灰时要用方尺压住墙角保温浆料层上下搓动,抹子反复检查抹压修补,基本达到垂直,然后用阴、阳角抹子压光,以确保垂直度偏差和直角度偏差均为±2mm;
  c) 门窗口施工时应先抹门窗侧口、窗台和窗上口,再抹大墙面,施工前应按门窗口的尺寸截好单边八字靠尺,做口应贴尺施工以保证门窗口处方正。
  2、贴砌保温板做法
  1) 贴角部保温板,放水平线在首层阳角处按垂直控制线和+500mm线粘贴角部保温板(双面经界面砂浆处理的梯形槽EPS板、双孔XPS板或竖丝岩棉板)。粘贴时应注意保温板应交叉探出墙体一个保温层总厚度,保证阳角为错茬粘贴。粘贴时应用线坠双向吊垂直检查,最后用水平尺检验保温板水平度。粘贴角部保温板的下沿应沿墙体正负零线铺贴。同样,在墙体的另一端粘贴角部保温板,并在两板间拉出该贴砌层的水平控制线。
  2) 贴砌保温板         

图5.2.4-3  抹粘结找平浆料贴砌保温板

 

  聚苯板应预先加工成需要的规格和形状,EPS板的粘贴面应有梯形槽,XPS板的板面应用专用机械钻两个透气孔,聚苯板的双面应经聚苯板界面砂浆处理过。有两种贴砌EPS板的方法,一种是在墙面首先抹约15mm厚粘结找平浆料,再用粘结找平浆料将EPS板背面的梯形槽抹平,按上跟线、下跟棱的要求分层粘贴EPS板(图5.2.4-3);另一种是仅在墙面抹粘结找平浆料,通过均匀轻柔挤压EPS板,使EPS板梯形槽埋入粘结找平浆料。贴砌XPS板或竖丝岩棉板时,采用仅在墙面抹粘结找平浆料均匀轻柔挤压保温板的方法,并将XPS板的孔洞用粘结找平浆料填平。保温板之间约10mm宽的板缝应用粘结找平浆料砌筑,灰缝不饱满处用粘结找平浆料勾平。

  保温板贴砌时遇到非标准尺寸时,可进行现场裁切。裁切时应注意边口尺寸整齐,切口应与保温板面垂直。

  贴砌时应按自下而上、水平方向依次贴砌,上下错缝粘贴,门窗口、墙角处不得贴砌小于标准尺寸1/2的非标准尺寸板,小于标准尺寸1/2的非标准尺寸板应贴砌在窗间墙等次要部位。窗口处的板应裁成刀把形(图5.2.4-4),墙角处贴砌应交错互锁(图5.2.4-5)。 

 

  3) 做灰饼、冲筋

  在距大墙阴角或阳角约100mm处,根据垂直控制通线按1.5m左右间距做垂直方向灰饼,顶部灰饼距楼层顶部约100mm,底部灰饼距楼层底部约100mm。待垂直方向灰饼固定后,在同一水平位置的两个灰饼间拉水平控制通线,具体做法为将带小线的小圆钉插入灰饼,拉直小线,小线要比灰饼略高1mm,在两灰饼之间按1.5m左右间距水平粘贴若干灰饼或冲筋(图5.2.4-6)。灰饼可用粘结找平浆料做,也可用废保温板裁成50mm×50mm小块粘贴。每层灰饼粘贴施工作业完成后水平方向用5m小线拉线检查灰饼的一致性,垂直方向用2m托线板检查垂直度,并测量灰饼厚度,冲筋厚度应与灰饼厚度一致。用5m小线拉线检查冲筋厚度的一致性,并记录。
  4) 抹粘结找平浆料找平
  粘结层固化后,根据防火要求在保温板面层抹不小于10mm厚粘结找平浆料(图5.2.4-7),平整度偏差为±2mm,抹灰厚度略高于灰饼的厚度。

 

  找平施工按照从上至下、从左至右的顺序抹。对于凹陷处应用稀粘结找平浆料抹平,凸起处可用抹子立起来将其刮平。抹完整个墙面后,用杠尺在墙面上来回搓抹,去高补低。最后再用抹子压一遍,使表面平整。阴阳角找方、门窗侧口应按下列步骤进行:
  a) 用木方尺检查基层墙角的直角度,用线坠吊垂直检验墙角的垂直度;
  b) 粘结找平浆料抹灰后应用木方尺压住墙角浆料层上下搓动,使墙角粘结找平浆料基本达到垂直,然后用阴阳角抹子压光;
  c) 粘结找平浆料大角抹灰时要用方尺、抹子反复测量抹压修补,以确保垂直度偏差和直角度偏差均为±2mm;
  d) 门窗边框与墙体连接应预留出找平层的厚度,并做好门窗框表面的保护;
  e) 窗户辅框安装验收合格后方可进行窗口部位的找平抹灰施工,门窗口施工时应先抹门窗侧口、窗台和窗上口,然后再抹大面墙,施工前应按门窗口的尺寸截好单边八字靠尺,做口应贴尺施工,以确保门窗口处方正及内、外尺寸的一致性。
  3、贴砌保温板简易做法
  1) 贴角部保温板,放水平线在首层阳角处按垂直控制线和+500mm线粘贴角部保温板(双面经界面砂浆处理的梯形槽EPS板、双孔XPS板或竖丝岩棉板)。粘结时应注意保温板应交叉探出墙体一个保温层总厚度,保证阳角为错茬粘贴。粘贴时应用线坠双向吊垂直检查,最后用水平尺检验保温板水平度。粘贴角部保温板的下沿应沿墙体正负零线铺贴。同样,在墙体的另一端粘贴角部保温板,并在两板间拉出该贴砌层的水平控制线。
  2) 贴砌保温板
  聚苯板应预先加工成需要的规格和形状,EPS板的粘贴面应有梯形槽,XPS板的板面应用专用机械钻两个透气孔,聚苯板的双面应经聚苯板界面砂浆处理过。有两种贴砌EPS板的方法,一种是在墙面首先抹约15mm厚粘结找平浆料,再用粘结找平浆料将EPS板背面的梯形槽抹平,按上跟线、下跟棱的要求分层粘贴EPS板;另一种是仅在墙面抹粘结找平浆料,通过均匀轻柔挤压EPS板,使EPS板梯形槽埋入粘结找平浆料。贴砌XPS板或竖丝岩棉板时,采用仅在墙面抹粘结找平浆料均匀轻柔挤压保温板的方法,并将XPS板的孔洞用粘结找平浆料填平。保温板之间约10mm宽的板缝应用粘结找平浆料砌筑,灰缝不饱满处用粘结找平浆料勾平(图5.2.4-8)。
保温板贴砌时遇到非标准尺寸时,可进行现场裁切。裁切时应注意边口尺寸整齐,切口应与保温板面垂直。贴砌时应按自下而上、水平方向依次贴砌,上下错缝粘贴,门窗口、墙角处不得贴砌小

图5.2.4-8 贴砌聚苯板

  于标准尺寸1/2的非标准尺寸板,小于标准尺寸1/2的非标准尺寸板应贴砌在窗间墙等次要部位。窗口处的板应裁成刀把形,墙角处贴砌应交错互锁。
  5.2.5  涂料饰面抹抹面砂浆,铺压耐碱玻纤网格布,再抹抹面砂浆面层。
  5.2.6  各种涂料饰面按相应工艺要求施工。
  5.2.7  瓷砖饰面抹抗裂砂浆,铺压热镀锌电焊网后再抹抗裂砂浆。
  待保温层或找平层施工完成3~7d且施工质量验收合格后,即可进行抗裂防护层施工。先抹第一遍抗裂砂浆,厚度控制在2~3mm(图5.2.7-1)。接着铺贴热镀锌电焊网,应分段进行铺贴,热镀锌电焊网的长度最长不应超过3m。为使施工质量得到保证,施工前应预先展平热镀锌电焊网并按尺寸要求裁剪好,边角处的热镀锌电焊网应折成直角。铺贴时应沿水平方向按先下后上的顺序依次平整铺贴,铺贴时先用U型卡子卡住热镀锌电焊网,使其紧贴抗裂砂浆表面,然后按双向@500mm梅花状分布(图5.2.7-2)用塑料锚栓将热镀锌电焊网锚固在基层墙体上,有效锚固深度不得小于25mm,局部不平整处用U型卡子压平。热镀锌电焊网之间搭接宽度不应小于两个网格,搭接层数不得大于3层,搭接处用U型卡子和钢丝固定。所有阳角处的热镀锌电焊网不应断开,阴阳角处角网应压住对接片网。窗口侧面、女儿墙、沉降缝等热镀锌电焊网收头处应用水泥钉加垫片将热镀锌电焊网固定在主体结构上。

 

  热镀电焊网铺贴完毕后,应重点检查阳角处热镀电焊网连接状况,再抹第二遍抗裂砂浆,并将热镀电焊网包覆于抗裂砂浆之中,抗裂砂浆的总厚度宜控制在8~10mm,抗裂砂浆面层应平整。
  5.2.8  粘贴瓷砖
  1、瓷砖工程深化设计
  瓷砖粘贴前,应首先对设计未明确的细部节点进行辅助深化设计,按不同基层做出样板墙或样板件,确定瓷砖排列方式、缝宽、缝深、勾缝形式及颜色、防水及排水构造、基层处理方法等施工要点。瓷砖的排列方式通常有对缝排列、错缝排列、菱形排列、尖头形排列等几种形式;勾缝通常有平缝、凹平缝、凹圆缝、倾斜缝、山型缝等几种形式。确定粘结层及勾缝材料、调色矿物辅料等的施工配合比,外墙瓷砖不得采用密缝,留缝宽度不应小于5mm,一般水平缝10~15mm,竖缝6~10mm,凹缝勾缝深度一般为2~3mm。排砖原则确定后,现场实地测量结构尺寸,综合考虑找平层及粘结层的厚度,进行排砖设计,条件具备时应采用计算机辅助计算和制图。做粘结强度试验,经建设、设计、监理各方认可后以书面的形式进行确定。
  2、弹线分格抗裂砂浆基层验收后即可按图纸要求进行分段分格弹线,同时进行粘贴控制瓷砖的工作,以控制瓷砖出墙尺寸和垂直度、平整度。注意每个立面的控制线应一次弹完。每个施工单元的阴阳角、门窗口、柱中、柱角都要弹线。控制线应用墨线弹制,验收合格后才能局部放细线施工。
  3、排砖
  阳角、窗口、大墙面、通高的柱垛等主要部位都要排整砖,非整砖要放在不明显处,且不宜小于1/2整砖。墙面阴阳角处最好采用异型角砖,不宜将阳角两侧砖边磨成45º角后对接;如不采用异型角砖,也可采用大墙面瓷砖压小墙面瓷砖的方法。横缝要与窗台平齐,墙体变形缝处,瓷砖宜从缝两侧分别排列,留出变形缝。外墙瓷砖粘贴应设置伸缩缝,竖向伸缩缝宜设置在洞口两侧或与墙边、柱边对应的部位,横向伸缩缝可设置在洞口上下或与楼层对应处,伸缩缝应采用柔性防水材料嵌缝。对于女儿墙、窗台、檐口、腰线等水平阳角处,顶瓷砖应压盖立瓷砖,立面底皮砖应封盖底平面瓷砖,可下突3~5mm兼作滴水线,底平面瓷砖向内翘起以便于滴水。
  4、浸砖
  吸水率大于0.5%的瓷砖应浸泡后使用,吸水率小于0.5%的瓷砖不需要浸砖。瓷砖浸水后应晾干后方可使用。
  5、贴砖
  贴砖施工前,应在粘贴基层上充分用水湿润。贴砖作业一般从上至下进行,高层建筑大墙面贴砖应分段进行,每段贴砖施工应由下至上进行。先固定好靠尺板贴最下一皮砖,瓷砖贴上后用灰铲柄轻轻敲击砖面使之附线,轻敲表面固定(图5.2.8)。用开刀调整竖缝,用小杠尺通过标准点调整平整度和垂直度,用靠尺随时找平找方。在粘结层初凝时,可调整瓷砖的位置和接缝宽度,初凝后严禁振动或移动瓷砖。砖缝宽度可用自制米厘条控制,如符合模数也可采用标准成品缝卡。墙面突出的卡件、水管或线盒处宜采用整砖套割后套贴,套割缝口要小,圆孔宜采用专用开孔器来处理,不得采用非整砖拼凑镶贴。粘贴施工时,当室外气温大于35℃,应采取遮阳措施。贴砖时背面打灰要饱满,粘结灰浆中间略高四边略低,粘贴时要轻轻揉压,压出灰浆最后用铁铲剔除灰浆。粘结灰浆厚度宜控制在3~5mm左右。瓷砖的垂直、平整度应与控制瓷砖一致。

  粘贴纸瓷砖时应事先制定与纸瓷砖相应的模具,将模具套在纸瓷砖上,然后将模具后面刮满厚度为2~5mm的粘结砂浆,取下模具,从下口粘贴线向上粘贴纸瓷砖,并压实拍平,应在粘结砂浆初凝前,将纸瓷砖纸板刷水润透,并轻轻揭去纸板,应及时修补表面缺陷,调整缝隙,并用粘结砂浆将未填实的缝隙嵌实。

 

  5.2.9  瓷砖勾缝
  勾缝施工应采用专用的勾缝胶粉,施工时按要求加水搅拌均匀制成专用勾缝砂浆。勾缝施工应在瓷砖粘贴施工检查合格后进行。粘结层终凝后可按照样板墙确定的勾缝材料、缝深、勾缝形式及颜色进行勾缝,勾缝要视缝的形成使用专用工具;勾缝宜先勾水平缝再勾竖缝,纵横交叉处要过渡自然,不能有明显痕迹。砖缝要在一个水平面上,并且连续、平直、深浅一致,表面应压光,缝深2~3mm(图5.2.9)。采用成品勾缝材料应按厂家说明书进行操作。缝勾完后应立即用棉丝或海绵蘸水或清洗剂擦洗干净,勾缝完毕对大面积外墙面进行检查,保证整体工程的清洁美观。
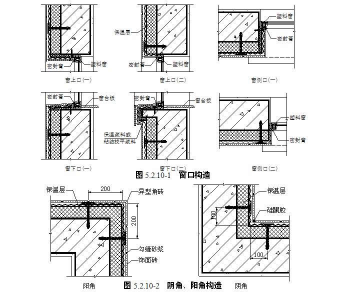
  5.2.10  细部节点做法
  细部节点做法参现图5.2.10-1~图5.2.10-4(图中保温浆料做法的保温层是保温浆料,贴砌保温板做法的保温层是粘结找平浆料+保温板+粘结找平浆料,贴砌保温板简易做法的保温层是粘结找平浆料+保温板)。

  5.3  劳动力组织(均按瓷砖饰面考虑)
  5.3.1  保温浆料做法(按外墙保温面积10000m2、工期90天计算)的劳动力计划见表5.3.1-1,施工进度计划见表

  5.3.1-2,每平方米的劳动(标准)定额见表5.3.1-3。

  5.3.2  贴砌保温板做法(按外墙保温面积10000m2、工期80天计算)的劳动力计划见表5.3.2-1,施工进度计划见表5.3.2-2,每平方米的劳动(标准)定额见表5.3.2-3。

 

  5.3.3  贴砌保温板简易做法(按外墙保温面积10000m2、工期60天计算)的劳动力计划见表5.3.3-1,施工进度计划见表5.3.3-2,每平方米的劳动(标准)定额见表5.3.3-3。

 

表5.3.3-3  贴砌保温板简易做法每平方米的劳动(标准)定额

  6.材料与设备
  6.1  系统要求
  6.1.1  该外墙外保温系统应通过耐候性试验和抗震试验验证。
  6.1.2  该外墙外保温系统的性能应符合表6.1.2的要求。

  6.2  工程材料要求
  6.2.1  保温浆料和粘结找平浆料的性能指标应符合表6.2.1的要求。

  6.2.2  保温板应符合如下要求:
  1、保温板的性能指标应符合表6.2.2-1的要求。

 

  2、为了便于粘贴,EPS板粘贴面开有与长度方向平行的梯形槽(图6.2.2-1),简称梯形槽EPS板;为了便于透气和粘贴,在XPS板长度方向的中轴线上开有两个垂直于板面的通孔(图6.2.2-2),简称双孔XPS板。梯形槽EPS板和双孔XPS板的技术要求见表6.2.2-2。

  6.2.3  结构界面砂浆性能指标应符合表6.2.3的要求。

  6.2.4  保温板界面砂浆的性能指标应符合表6.2.4的要求。

  6.2.5  抗裂砂浆的性能指标应符合表6.2.5的要求。

 

  6.2.6  塑料锚栓由螺钉和带圆盘的塑料膨胀套管两部分组成,其中螺钉采用经过表面防锈蚀处理的金属制成,塑料膨胀套管应采用聚酰胺、聚乙烯或聚丙烯等制作,不得使用回收的再生材料。塑料锚栓的性能指标应符合表6.2.6的要求。

 

  6.2.7  热镀锌电焊网的性能指标除应符合《镀锌电焊网》(QB/T 3897—1999)的要求外,还应符合表6.2.7的要求。

  6.2.8  瓷砖粘结砂浆的性能指标应符合表6.2.8的要求。

  6.2.9  瓷砖勾缝料的性能指标应符合表6.2.9的要求。

 

  6.2.10  瓷砖粘贴面应带有燕尾槽,并不得有脱模剂,其性能指标除应符合《陶瓷砖》(GB/T 4100)、《陶瓷劈离砖》(JC/T 457)、《玻璃马赛克》(GB/T 7697)的相关要求外,还应符合表6.2.10的要求。

 

  6.2.11  在该外墙外保温系统中所采用的附件,包括密封膏、密封条、金属护角、水泥钉、盖口条等应分别符合相应产品标准的要求。
  6.2.12  水泥为强度等级42.5普通硅酸盐水泥,水泥技术性能应符合《通用硅酸盐水泥》(GB 175—2007)的要求。
  6.2.13  砂子选用中砂,应符合《普通混凝土用砂、石质量及检验方法标准》(JGJ 52—2006)的规定。
  6.2.14  材料消耗计划(按外墙保温面积10000m2计算)见表6.2.14。

 

  6.3  机具设备
  6.3.1  常用机械设备:水平运输手推车、强制式砂浆搅拌机(转速>60转/s)、手提式搅拌器、电动吊篮或专用保温施工脚手架、垂直运输机械、电热丝、接触式调压器、热镀锌电焊网展平及裁剪设备、电动冲击钻、瓷砖切割器、380V橡套线(五芯)、220V橡套线(三芯)、配电箱(三相)、电锤等。
  6.3.2  常用施工工具:铁抹子、阳角抹子、阴角抹子、齿型抹子、托灰板、喷枪、滚刷、杠尺(铝合金杠尺长度2~2.5m和长度1.5m两种)、靠尺(木靠尺2~3m单面为八字尺)、木方尺(单边长不小于150mm)、剪刀、壁纸刀、手锯、手锤、橡皮锤、克丝钳子、台秤、水桶、铁锹、扫帚等。
  6.3.3  常用检测工具:经纬仪及放线工具、托线板、方尺、探针、水平尺、钢尺等。


  7.质量控制
  7.1  质量控制要点
  7.1.1  基层墙体垂直、平整度应达到结构工程质量要求。墙面清洗干净,无浮土、无油渍,空鼓及松动、风化部分剔掉,界面处理均匀,粘接牢靠。
  7.1.2  保温浆料、粘结找平浆料和保温板的厚度应达到设计厚度,墙面平整,阴阳角、门窗洞口垂直、方正。
  7.1.3  抗裂防护层厚度为8~10mm,墙面无明显接茬、抹痕,墙面平整,门窗洞口、阴阳角垂直、方正。
  7.1.4  热镀电焊网与抗裂砂浆握裹力强,瓷砖、涂料饰面不宜采用抗裂砂浆复合玻纤网格布做法。
  7.1.5  热镀电焊网铺设平整,阳角部位热镀电焊网不得断开,搭接网边应被角网压盖,塑料锚栓数量、锚固位置符合要求。
  7.2  质量验收
  7.2.1  一般规定
  1、应按照《建筑节能工程施工质量验收规范》(GB 50411)和《建筑装饰装修工程质量验收规范》(GB 50210)的相关规定进行外墙外保温工程的施工质量验收。
  2、瓷砖、涂料饰面的验收还应按照《外墙饰面砖工程施工及验收规程》(JGJ 126)的相关规定进行验收。
  7.2.2  主控项目
  1、所用材料品种、规格、质量、性能应符合设计要求和本工法及有关标准的规定。
  2、保温层厚度及构造做法应符合建筑节能设计要求,保温层平均厚度不允许出现负偏差。
  3、保温板与墙面必须粘结牢固,无松动和虚粘现象。
  4、外墙外保温系统各层构造做法应符合设计要求,并应按照经过审批的施工方案施工。
  7.2.3  一般项目
  1、表面平整、洁净,接茬平整,线角顺直、清晰,毛面纹路均匀一致。
  2、护角符合施工规定,表面光滑、平顺,门窗框与墙体间缝隙填塞密实,表面平整。
  3、孔洞、槽、盒位置和尺寸正确,表面整齐、洁净。
  4、外保温墙面层的允许偏差及检验方法应符合表7.2.3的规定。

 

  8.安全措施
  8.0.1  每个工地须委派专职安全员,负责施工现场的安全管理工作,制定并落实岗位安全责任制,签订安全协议。工人上岗前必须进行安全技术培训,合格后才能上岗操作。制定意外安全事故应急处理预案,以防意外发生。现场安全规定应符合表8.0.1的要求。

 

  8.0.2  应遵守有关安全操作规程。脚手架、吊篮经安全检查验收合格后,方可上人施工,施工时应有防止工具、用具、材料坠落的措施。
  8.0.3  操作人员必须遵守高空作业安全规定,系好安全带。
  8.0.4  进场前,必须进行安全教育,注意防火,现场不许吸烟、喝酒。
  8.0.5  遵守施工现场制定的一切安全制度。
  8.0.6  移动吊篮、翻拆架子应防止破坏已抹好的墙面,门窗洞口、边、角、垛宜采取保护性措施。其它工种作业时应不得污染或损坏墙面,严禁踩踏窗口。
  8.0.7  施工完的墙面、管道、门窗口等处残存砂浆,应及时清理干净。
  8.0.8  保温层、抗裂防护层、装饰层在干燥前应防止水冲、撞击、振动。


  9.环保措施
  9.0.1  外保温工程在施过程中必须严格遵守国家和当地的建设工程施工现场环境保护标准及建设工程施工现场场容卫生标准的有关规定。
  9.0.2  保温工程施工现场内各种施工相关材料应按照施工现场平面图要求布置,分类码放整齐,材料标识要清晰准确。
  9.0.3  施工现场所用材料保管应根据材料特点采取相应的保护措施。材料的存放场地应平整夯实,有防潮排水措施。材料库内外的散落粉料必须及时清理。
  9.0.4  为防止聚苯颗粒飞散、粉料扬尘,施工现场必须搭设封闭式保温浆料及砂浆搅拌机机棚,并配备有效的降尘防尘及污水排放装置。
  9.0.5  搅拌机设专职人员环境保护,及时清扫杂物,对所用的袋子及时捆好,用完的塑料桶码放整齐并及时清退。
  9.0.6  保温浆料搅拌机四周及现场内无废弃保温浆料和砂浆。
  9.0.7  施工现场注意节约用水,杜绝水管渗泄漏及长流水。
  9.0.8  保温工程施工时建筑物内外散落的零散碎料及运输道路遗洒应设专人清扫。
  9.0.9  施工垃圾及废弃保温板材应集中分拣,并及时清运回收利用,按指定的地点堆放。


  10.效益分析
  10.0.1  该技术综合了各种外墙外保温的优点,是国际领先的外墙外保温技术,采取了相应安全可靠的加固措施和合理的构造设计,可在高层建筑中使用。
  10.0.2  本工法可满足不同气候区的节能标准要求,其耐候能力优异,可与建筑结构寿命同步,该技术可有效抵抗热应力、火、水或水蒸气、风压、地震等外界作用力直接作用于建筑物表面,防止出现饰面开裂、瓷砖起鼓、脱落等质量事故,使建筑物和外保温系统的安定性稳定可靠。
  10.0.3  本工法所述的外墙外保温系统施工速度快、工程质量好、平整度好、可靠性高,市场前景广阔,具有较高的使用性,绿色环保,性价比优,已在多个工程应用中得到证实,具有较好的社会效益和经济效益。

 

  11.应用实例
  11.0.1  典型工程实例名单见表11.0.1。




 

所属分类:标准
主站蜘蛛池模板: 彭阳县| 滦南县| 儋州市| 明水县| 平潭县| 铜山县| 龙里县| 牡丹江市| 襄城县| 临颍县| 巴彦淖尔市| 新闻| 横山县| 诏安县| 宣城市| 天镇县| 洛浦县| 惠来县| 华亭县| 乐至县| 科技| 芜湖县| 基隆市| 阿拉善盟| 阿拉善左旗| 西乡县| 中卫市| 乌恰县| 靖边县| 方城县| 缙云县| 石柱| 略阳县| 射阳县| 马尔康县| 迁西县| 青田县| 津市市| 抚松县| 东台市| 进贤县|